/ verbindend in maatschappelijk vastgoed
Atrium gezien vanaf de centrale trap
Onderwijs
Artikel
Schooldomein

Schoonhovens College en Sporthal De Meent; een onderwijsparel voor de Krimpenerwaard

15 april 2026

“Vanaf dag één voel ik me thuis op deze school.” Een mooier compliment van een leerling had architect Frans Bochanen zich niet kunnen wensen. ‘Deze school’ is de nieuwe vmbo-locatie van het Schoonhovens College. Na de nodige tegenvallers tijdens het proces - corona, stijgende bouwprijzen, brandstichting - overheerst nu de trots op het eindresultaat.

Tekst: Anje Romein

Dubbelhoge praktijklokalen op de begane grond, een transparant atrium, ingenieuze afzuiginstallaties: het Schoonhovens College is helemaal klaar voor eigentijds beroepsonderwijs. Zeven jaar geleden was dit eindresultaat nog slechts een droom. Dát het onderwijs niet langer houdbaar was in de oudbouw uit de jaren 50/60 was duidelijk. Maar de weg naar de gewenste nieuwbouw was lang.

Atrium gezien vanaf de centrale trap
Atrium gezien vanaf de centrale trap

Turbulente tijden

In het huisvestingsplan voor de gemeente Krimpenerwaard uit 2017 stond het Schoonhovens College hoog op de lijst, maar een budget van 25 miljoen euro voor tien scholen was lang niet toereikend. “Bij het voorlopig ontwerp liepen we al vast”, blikt wethouder Ria Boere terug. “We hadden behoefte aan professionele hulp van buiten die ons door een turbulente en onzekere tijd kon loodsen. De oorlog in Oekraïne voerde de bouwkosten op. Ook de nieuwbouw van de sporthal namen we mee in de plannen. In dit complexe verhaal was het fijn iemand erbij te hebben met ervaring en de juiste rekenmethodieken.”

Quote icoon

"We ontwierpen de school binnen een Total Engineering Team" - Frans Bochanen, Geurst & Schulze architecten

Verrassende zichtlijn vanaf de trap in het praktijklokaal BWI

Zo kwam huisvestingsadviseur Jan Remijnse in beeld. Hij adviseerde meer budget vrij te maken en het voorlopige ontwerp bij te stellen, mét behoud van kwaliteit. Frans was blij dat ICSadviseurs aan tafel kwam. “We ontwierpen de school binnen een Total Engineering Team. Dat betekent dat architectuur, constructie, installaties en bouwfysica van het begin integraal zijn ontwikkeld. Met ICSadviseurs aan tafel konden we het gesprek met de gemeente verder brengen.”

Vast en flexibel

Voor de aanbestedingsprocedure van de aannemer ontwikkelde Jan een rekenmodel dat anticipeerde op prijsstijgingen door de oorlog in Oekraïne. “Aannemers konden inschrijven met een mix van vaste en flexibele prijzen. Hoe meer vaste prijs een partij bood, hoe meer punten ze kreeg. De keuze viel uiteindelijk op BM Van Houwelingen, die een volledig vaste prijs aanbood.” Het risico dat BM Van Houwelingen daarmee nam, was ingecalculeerd. Werkvoorbereider David Schefferlie: “De omvang van dit project - een brede vmbo-school met sporthal – maakte dit project erg aantrekkelijk voor onze portfolio. We wilden deze opdracht graag uitvoeren. Wat meehielp was de medewerking van onze leveranciers. Wij werken structureel samen met vaste partners die gemotiveerd zijn om gezamenlijk deze uitdaging aan te gaan.” 

Groene Hart

Om kosten te besparen ging er onder andere een streep door parkeren onder de sporthal en kreeg de fundering niet de constructie voor een eventuele extra bouwlaag. Het nieuwe ontwerp berustte op vier pijlers: kwaliteit, nieuwsgierigheid, veiligheid en transparantie. Frans: “Door het gebouw compact te organiseren, ontstaat er maximaal ruimte voor de groene omgeving en de relatie met het Groene Hart. School en sporthal vormen één geheel, met kleine subtiele verschillen in de gevel.” Leuk detail: aan de buitenmuur hangen stalen spankabels, waarlangs beplanting groeit. En er zijn nestkasten voor vleermuizen, mussen en gierzwaluwen. 
 

Quote icoon

"We werken structureel samen met vaste partners die gemotiveerd zijn om gezamenlijk deze uitdaging aan te gaan" - David Schefferlie, BM van Houwelingen

Praktijklokaal BWI Bouw Wonen en Interieur

Foto: Praktijklokaal BWI (Bouw, Wonen en Interieur)

Zichtbaarheid

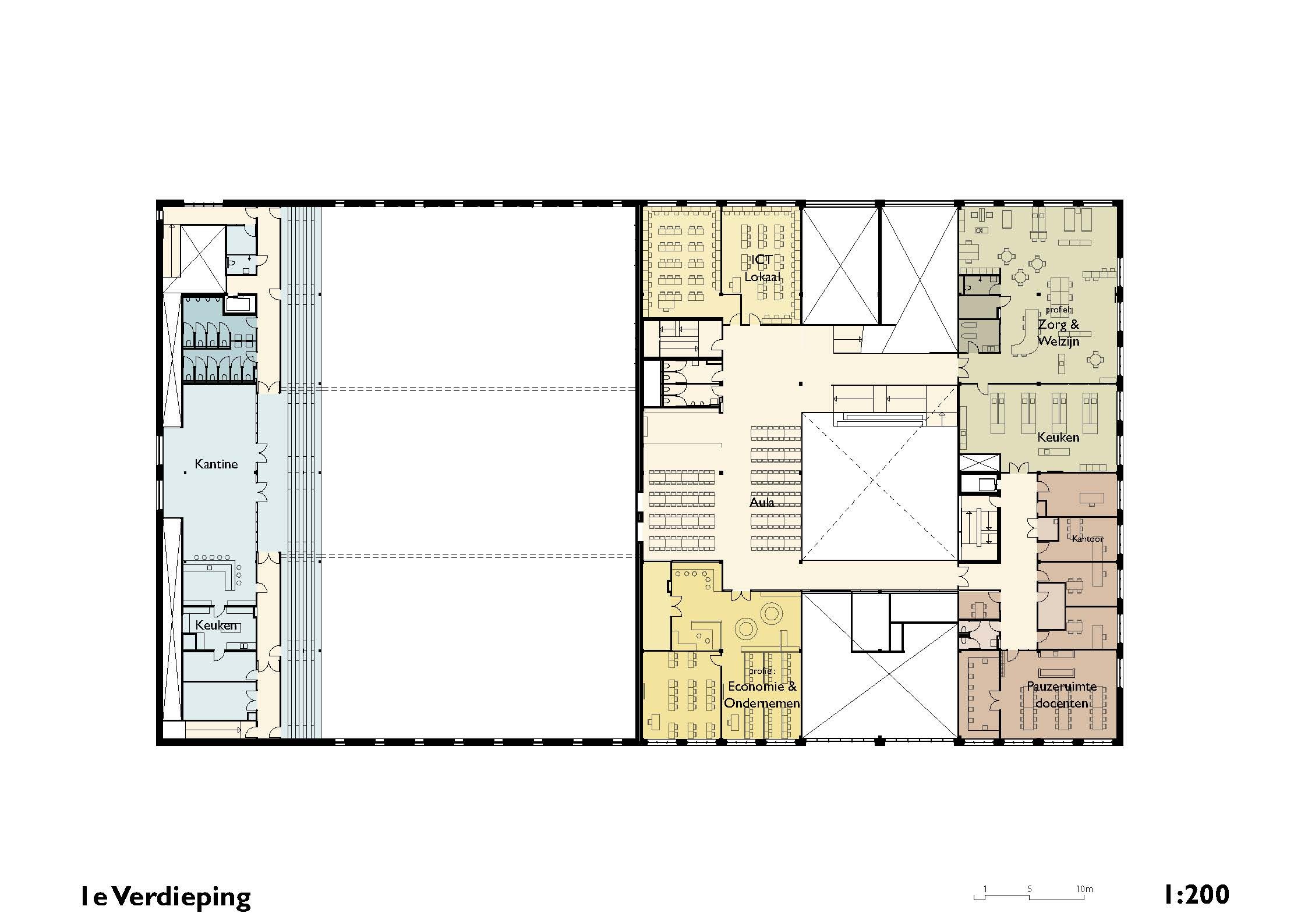
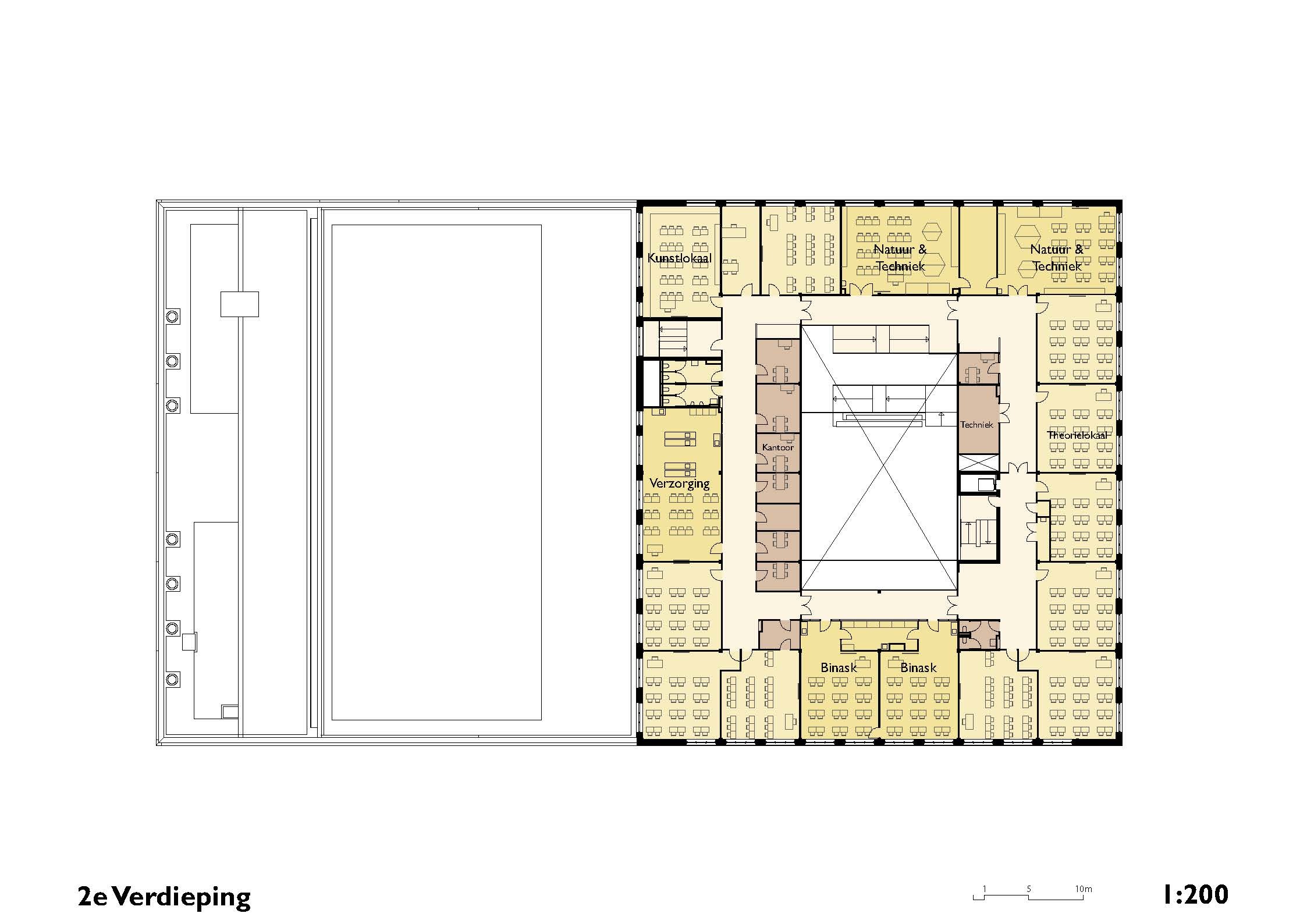
De architect nam ook de kernwaarden van het vmbo-onderwijs op het Schoonhovens College in het ontwerp mee: ambacht, vakmanschap en zichtbaarheid. Een centrale vide werd het uitgangspunt. Alle dubbelhoge praktijkruimtes – inclusief geavanceerde technische voorzieningen – zijn op de begane grond gesitueerd. 

Hoe verder naar boven, hoe rustiger het wordt. Op de derde verdieping zijn theorielokalen. Wils van Leijden, destijds schooldirecteur: “De constructie van het gebouw is goed zichtbaar. Daarmee heeft het ook een educatieve functie voor leerlingen. Het maximale hoogteverschil is één verdieping. Die gelaagdheid zorgt voor meer veiligheid.” 

Zicht vanuit het trappenhuis in het atrium

Geborgenheid

Er is bewust gekozen voor extra investeringen, met lagere exploitatie- en onderhoudskosten op termijn. Het hele gebouw straalt, mede dankzij warme, duurzame materialen, kwaliteit uit. Licht komt diep de ruimtes binnen doordat ramen tot hoog in de gevel zijn geplaatst. En vrijwel elke ruimte voldoet aan Frisse Scholen klasse B. “Zo hoort een vmbo-school te zijn”,  zegt Ria. “Vmbo-onderwijs is vaak een ondergeschoven kindje. 

We moeten juist investeren in deze leerlingen en ze goed voorbereiden op werk in het bedrijfsleven, van techniek tot zorg. Het vmbo krijgt hier de aandacht die het verdient - een parel voor het onderwijs in de Krimpenerwaard.” 

Gevel beeld 2a
De bouwhekken staan er vanwege de sloop van de bestaande school

Wils kan dit alleen maar beamen: “Deze doelgroep verdient een nieuw pand met de nieuwste technieken. Het gebouw straalt geborgenheid uit en dwingt respect af. Voor onze leerlingen is het atrium het meest geslaagd. Daar ontmoeten ze elkaar en voelen ze zich thuis.” Ook docenten hebben de nieuwbouw omarmd. Groot voordeel: het gebouw faciliteert verschillende leermogelijkheden in één open ruimte, waarin collega’s en leerlingen elkaar nog wel zien. Ook op het gebied van akoestiek is het gebouw van hoog niveau. Door de toepassing van diverse akoestische panelen is een prettig, gedempt geluidsniveau gerealiseerd. Werkvoorbereider David licht toe: “Het plaatsen van deze panelen was een mooie uitdaging voor BM van Houwelingen. Daarnaast hebben we voorzieningen aangebracht voor onder meer lasrobots, houtmotinstallaties en meerdere keukens. Hoewel wij veel nieuwbouwscholen realiseren, zijn dit installaties die je niet dagelijks tegenkomt. Deze ervaring nemen we mee naar volgende VO schoolprojecten.”

Zicht vanuit het praktijklokaal in de aula

Schouders eronder

Wat ook niet onvermeld mag blijven: de goede samenwerking. Bijvoorbeeld tussen aannemer BM Van Houwelingen en de architect. David: “Het project is volledig in 3D uitgewerkt, waarbij de architect de afwerking tot op detailniveau heeft uitgewerkt. In nauwe samenwerking met de onderaannemers zijn vervolgens alle constructieve en bouwkundige onderdelen integraal in het 3D model opgenomen. 

Door het model te gebruiken als gezamenlijk referentiekader en dit te combineren met de ontwerpvisie van de architect, hebben wij dit kunnen overbrengen naar de uitvoering en ons voordeel hiermee behaald, zowel in kwaliteit als in efficiëntie.”
Ook tussen andere partijen verliep de samenwerking prettig. Gemeente, het bouwteam, de gebruikers, de omwonenden: iedereen was goed aangehaakt. Zelfs toen het project te maken kreeg met brandstichting gingen de schouders er gezamenlijk onder. Gemeentelijk projectleider Ron Overgoor: “Er moest zestien kilometer kabels vervangen worden. Toch besloten we vast te houden aan opening op 5 januari. Dat lukte door korte lijnen, snelle communicatie en vertrouwen. En kijk nu eens naar het resultaat: minstens een 9.”

Projectinformatie

  • Opdrachtgever: Gemeente Krimpenerwaard
  • Opdracht: Schoonhovens College locatie Vlisterweg en Sporthal De Meent
  • Ontwerp: Total Engineering Team o.l.v. Geurst & Schulze architecten met Zonneveld ingenieurs, Vintis Installatieadviseurs, DGMR en SkaaL
  • Aannemer: BM Van Houwelingen
  • Huisvestingsadviseur en projectmanagement: ICSadviseurs
  • Oplevering: 5 januari 2026
  • Budget: 38 miljoen euro (school, sporthal, omgeving)

Kijk voor meer informatie op www.bmvanhouwelingen.nl.