/ verbindend in maatschappelijk vastgoed
231023 MG 0464c Lucasvanderwee
Onderwijs
Artikel
Schooldomein

Shri Saraswatie integreert natuur en architectuur; herkenbaar punt in de wijk

21 november 2023

Ontwerpprincipes vanuit de Wederopbouw en ontwerpprincipes vanuit Vastu Shastra. Samen bepalen deze uitgangspunten de architectuur van het kindcentrum Shri Saraswatie in Rotterdam. Een robuust gebouw met verfijnde details.

Tekst: Sibo Arbeek  Fotografie: Lucas van der Wee

Het kindcentrum Shri Saraswatie biedt plaats aan bijzonder basisonderwijs en kinderopvang, dat gebaseerd is op hindoeïstische normen en waarden. De school is aangesloten bij de Stichting Hindoe Onderwijs (SHON), die ook scholen heeft in Almere, Amsterdam, Den Haag en Utrecht. RoosRos Architecten was verantwoordelijk voor het ontwerp, waarvan de stedenbouwkundige uitgangspunten een belangrijk gegeven waren. Het kindcentrum ligt in het hart van de wijk Bospolder-Tussendijken in Rotterdam-West. De bouw van een nieuw kindcentrum op die plek wordt daarom beschouwd als een belangrijke stedenbouwkundige bouwsteen. Architect Chi-Hang Chim: “Het is een kenmerkende en multiculturele buurt en dan is het mooi om te zien wat goede architectuur kan doen.

231023 MG 0464 Lucasvanderwee

Dat zie je ook terug in het woningbouwproject le Medi van Geurst & Schulze Architecten. We willen met ons ontwerp ook een bijdrage leveren aan de wijk. We hebben diverse scholen in portefeuille, dus we weten hoe maatschappelijk relevant ze zijn. De Stichting had de wens een kindcentrum te realiseren dat gebaseerd is op het principe van het Hindoeïsme. Wij hadden ons goed ingelezen op de vraag, waardoor we wisten wat de opdrachtgever voor ogen had. De kern van de ontwerpvisie is het creëren van een herkenbaar punt in de wijk dat in dit geval ook harmonieert met de wederopbouwarchitectuur. Chi-Hang verder: “Het ontwerp is gebaseerd op de principes van Vastu Shastra, een traditioneel Indiaas architectuursysteem. Deze architectuur is een beetje vergelijkbaar met de Chinese feng shui. Je kunt een bepaalde symboliek en de bijbehorende regels vertalen, maar je moet wel weten wat de achterliggende gedachte is. Vastu Shastra (vãstu s’ãstra) kun je letterlijk vertalen als ‘architectuurwetenschap’. Het omvat richtlijnen voor ontwerp, inrichting, afmetingen, grondvoorbereiding, ruimtelijke ordening en geometrie. Elk ontwerp legt de nadruk op de integratie van architectuur en natuur.

Schermafbeelding 2026 02 23 132954

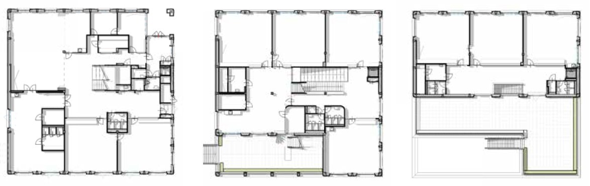
Het vierkant is een belangrijke geometrische vorm in Vastu Shastra. Het vierkant staat voor rust en herkenning. Deze vorm komt vaak terug in de klassieke architectuur en is op verschillende manieren terug te zien in het gebouw. Van de lay-out van het pand tot aan de vierkante kolommen in de constructie.

Quote icoon

"Elke verdieping heeft een daktuin die fungeert als buitenlokaal, wat past bij de filosofie om mens en natuur dichter bij elkaar te brengen"

Elke verdieping heeft een daktuin die fungeert als buitenlokaal, wat past bij de filosofie om mens en natuur dichter bij elkaar te brengen. Het maatsysteem is leidend; het hart ligt in het centrum en de structuur is ook af te lezen in de gevels en de verschillende verhoudingen. Dat moet je ook zo uitwerken; de aannemer vond het bijvoorbeeld handig om een leiding vanuit het plafond naar beneden te trekken en met een uitgetimmerde koof langs een kolom te leiden. Dat hebben we tegengehouden, omdat de kolommen als vierkant zijn bedacht. Het principe levert een bepaalde rust op in het gebouw en de organisatie. De symboliek is belangrijk; je bent als mens verbonden met de kosmos; de natuur. Het belang van verbonden zijn komt ook terug in het ontwerp. Het centrum is een wereld op zich; de leerpleinen zijn gekoppeld aan buitenruimten, zodat je daar ook les kunt hebben. Een andere link is het spelen met licht en donker; alle klaslokalen hebben gevelroosters of zogenaamde jali voor de ramen waardoor het licht mooi gefilterd binnenkomt en het ritme van de seizoenen en de dag aangeeft.”

231023 MG 0456 Lucasvanderwee

Wederopbouw

De architectuur van de Wederopbouw komt tot uiting in het gebouw door middel van een stevige orthogonale structuur van kolommen en liggers. Het gevelbeeld reflecteert zowel de wederopbouwarchitectuur als de Indiase architectuurstijl. Dat zie je terug in verticaliteit en de kolommen structuur. Tegenover deze robuustheid is er ook verfijning te vinden in de details die zijn ontleend aan Indiase bouwelementen. Elementen uit de Indiase bouwstijl, zoals de poort of Torana dragen bij aan de culturele herkenbaarheid van het ontwerp. De entree moet bijvoorbeeld aan de noordzijde liggen, gebaseerd op de zonrichting van de oude paleizen. We mochten de regels relateren aan de specifieke plek in de wijk; omdat de school aan een drukke straat ligt, die voor kinderen gevaarlijk kan zijn en rumoerig is. Het gebouw heeft iets van een pakhuis, maar ziet er tegelijk chique uit door de aandacht die eraan is besteed met verwijzingen uit de Indiase architectuur. Het breiwerk in het metselwerk, dat dient als decoratief motief, is geïnspireerd op de waterputten in India, zoals de bekende Chand Baori. Het lijkt op een stromende rivier en dat verwijst weer naar de natuurlijke ontwikkeling van het kind, dat zichzelf gaandeweg ontdekt.”

“En natuurlijk is het ook een duurzaam gebouw; het heeft een houtskelet binnenblad met een staalskeletconstructie. De ruimte-indeling is daardoor erg flexibel in de toekomst. De hoofdstructuur is een rasterpatroon binnen het vierkant en daar kun je op variëren. Maar het meest duurzame is de bijdrage aan de wijk, die door het nieuwe gebouw een mooie impuls krijgt.”

Projectinformatie

  • Project: Nieuwbouw kindcentrum Shri Saraswatie Rotterdam
  • Opdrachtgever: Stichting Hindoe Onderwijs (SHON) i.s.m. gemeente Rotterdam
  • Architect: RoosRos Architecten
  • Projectmanagement: bbn adviseurs
  • Constructeur: Pieters Bouwtechniek
  • Bouwfysica: DGMR
  • Advies installaties: DH-installatie advies BV
  • Volume: 1.450 m²
  • Ingebruikname: Eind augustus 2023

Kijk voor meer informatie op www.roosros.nl.